AMADA
REPLACEMENT BRUSH PANELS
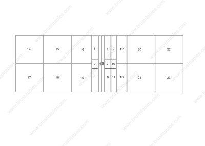
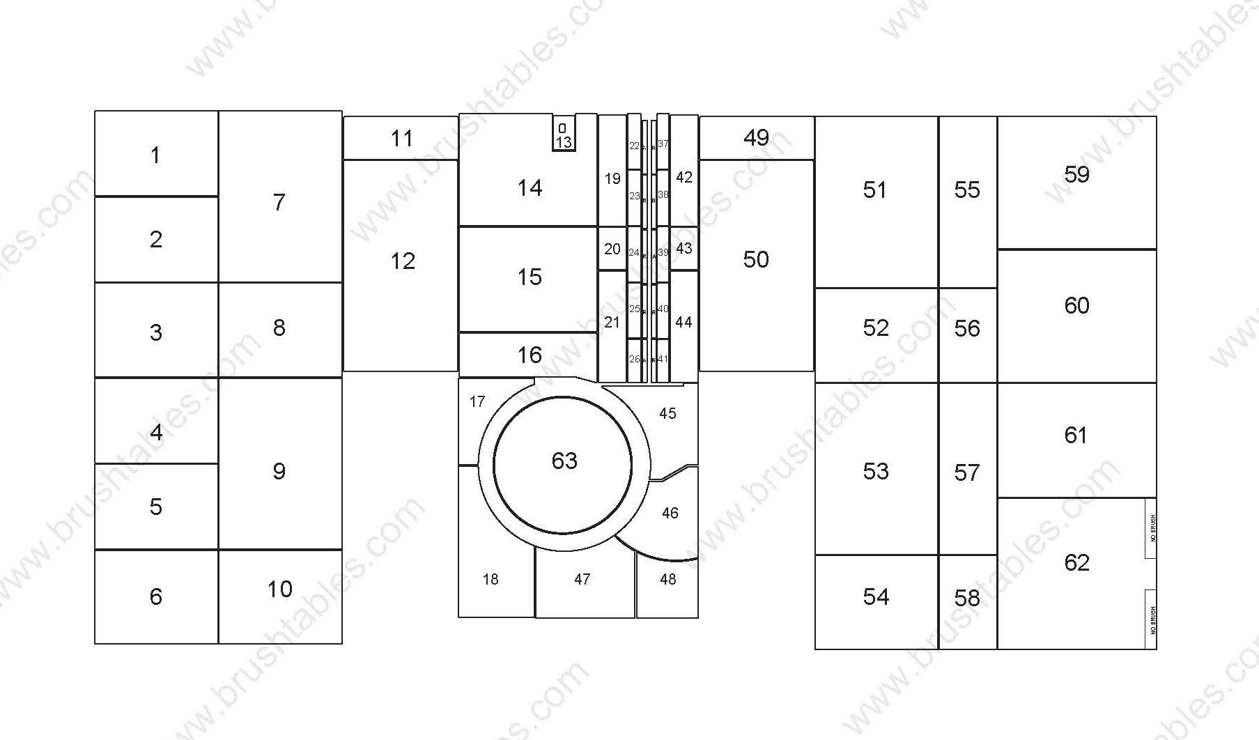
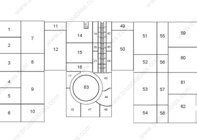
DRAWING SELECTION
Our OEM-quality turret replacement brush panels have been designed to meet industry standards. Use the following drawings as guidelines when selecting your turret replacement brush panels.
Alternatively, you can request a quote by OEM part number here.
Our Goal
Our goal is to make the very best replacement brush panel for your application regardless of the age, model or design of your turret. We understand that a company receiving 22 gauge polished copper has different requirements than a company receiving a 12 gauge cold roll steel. Some applications require design flexibility of the brush panels to meet the “weakest” design feature of the material being fabricated.
With our years of hands-on experience, we can help match the brush panel design to eliminate the scratches on your particular metal, whether it is satin finish: textured; stainless steel; aluminum; copper; or galvanized sheet.

